Used 2014 Coachmen RV Catalina 223FB
THIS RV IS SOLD. MORE AVAILABLE, CALL 812-354-2979
- Front Queen Bed
- Jack Knife Sofa
- Booth Dinette
- Kitchenette
- Large Rear Bath with Tub/Shower
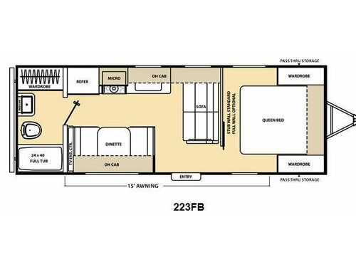
Enjoy traveling with family and friends in this Coachmen Catalina travel trailer 223FB. Inside find a full rear bath layout, and everything else you might need for spending time away from home.
As you enter there is a queen bed to the right with wardrobes on either side of the bed. You will also enjoy storage above the head of the bed too. The wall that divides the living area from the front bedroom comes standard as a stub wall, or you can choose an optional full wall for more privacy.
Around the corner in the living area find a sofa for plenty of seating between that and the booth dinette to the left of the entry door. There is overhead storage that runs from the kitchen area to the stub wall above the sofa, and also over the booth dinette. Enjoy a TV entertainment center found above the dinette mounted on the exterior bathroom wall.
The kitchen provides everything you need to cook and prepare food while you are away. There is a refrigerator, three burner range with microwave oven above, and large kitchen sink making cleaning up a cinch.
The rear full bath layout is what really makes this unit stand out. It features a large wardrobe to the right as you enter, a sink with medicine cabinet above, a toilet, and a 24" x 40" full tub/shower, and so much more!
You will also enjoy the front pass-through exterior storage compartment that is provided.
My sales lady was fantastic in matching me to the camper that fit our family the best. We needed sleeping for 6 and budget friendly she helped us find an amazing Transcend. Will definitely recommend to friends and family. Thanks ~ Joyce M. - Joyce from Vincennes, IN
Stock# EA018123
Exterior Color: White
| Sleeps | 5 |
| Length | 26 ft 2 in |
| Ext Width | 8 ft |
| Ext Height | 10 ft 7 in |
| Int Height | 6 ft 9 in |
| Exterior Color | White |
| Hitch Weight | 564 lbs |
| GVWR | 7000 lbs |
| Dry Weight | 4296 lbs |
| Cargo Capacity | 2738 lbs |
| Fresh Water Capacity | 46 gals |
| Grey Water Capacity | 40 gals |
| Black Water Capacity | 30 gals |
| Tire Size | ST205/75R14C |
| Furnace BTU | 30000 btu |
| Available Beds | Queen, Booth Dinette, Jack Knife Sofa |
| Refrigerator Type | Dbl. Door Gas/Electric |
| Refrigerator Size | 6 cu ft |
| Cooktop Burners | 3 |
| Number of Awnings | 1 |
| LP Tank Capacity | 40 lbs |
| Water Heater Capacity | 6 gal |
| Water Heater Type | Gas |
| AC BTU | 13500 btu |
| TV Info | TV |
| Awning Info | Manual |
| Axle Count | 2 |
| Number of LP Tanks | 2 |
| Shower Type | Tub/Shower Combo |
| Electrical Service | 30 amp |
Loading
Coachmen RV is built upon a simple principle… "Dedicated to the enrichment of your life." By providing you with long term value through all that we do, our focus is on providing a product with superior value and backing it through superior service and support. Once you become a Coachmen owner, we are committed to enhancing your Coachmen RV ownership and lifestyle experience… creating friends for life and memories that will last a lifetime.
At Coachmen you will find a rich history of commitment from our Team Members. This commitment extends to our owners and in the pride we have for our brand. The close relationship that we share with our owners and our dealers is a quality that others have been trying to mimic over our 57 year history. Our goals and principles remain well in focus.
Evans RV Sales is not responsible for any misprints, typos, or errors found in our website pages. Any price listed excludes sales tax. Manufacturer pictures, specifications, and features may be used in place of actual units on our lot. Please contact us @812-354-2979 for availability as our inventory changes rapidly. All calculated payments are an estimate only and do not constitute a commitment that financing or a specific interest rate or term is available.
Manufacturer and/or stock photographs may be used and may not be representative of the particular unit being viewed. Where an image has a stock image indicator, please confirm specific unit details with your dealer representative.


